Заказать звонок
Ваш регион:
Москва
Перейти на старый сайт

TD-60-6ZI Zn Крепежное кольцо самозажимное для крепления кабеля

TD-60-6ZI Zn Крепежное кольцо самозажимное для крепления кабеля

  • Описание

    Самозажимные стяжки обеспечивают надежные точки крепления для проводов к электронному шасси или корпусам. Оборудование устанавливается быстро и надежно без винтов и исключает использование клеев, которые обычно выходят из строя со временем и при изменении температуры.

  • Характеристики
    Тип крепежа
    Крепление кабельной стяжки
    Материал крепежа
    Нержавеющая сталь
    Тип запрессовочного крепежа
    TD
    Артикул
    TD-60-6ZI Zn
    Наличие резьбы у крепежа
    Нет
    Наличие покрытия заготовки
    Нет
    Фасовка
    1000 шт
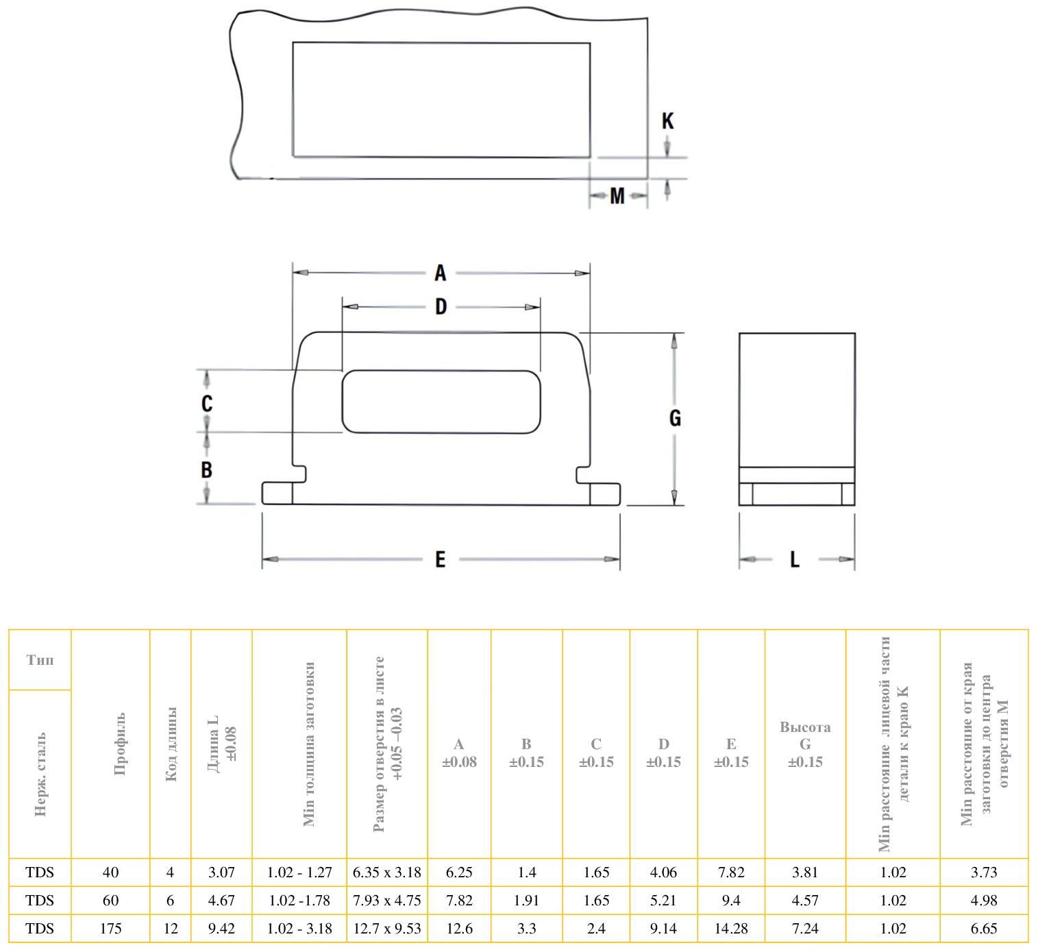
  • Чертежи
  • Номенклатура
TD-60-6 ZI TD-60-6 ZI
TDS-40-4 TDS-40-4
TD-175-12 Zi TD-175-12 Zi